Ваш город: Волгоград

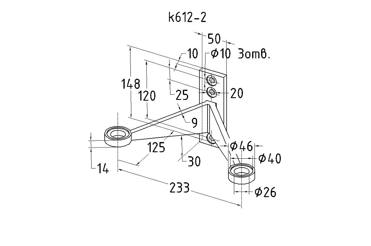
Крепление рутеля к стене, двойное, фланец с тремя отверстиями, AISI 304 k612-2

9 404 ₽/шт
Товары-аналоги
Наличие:
Доставка день в день с нашего склада до ТК для отправки в ваш город
Одинцово
В наличии
СПб-Волковская
В наличии
Москва-Жулебино
В наличии
КЗ-Алматы
В наличии
Екатеринбург
В наличии
Артикул
k612-2
Материал
AISI 304 (08Х18Н10)
Поверхность
Полированная
Описание
Крепление рутеля к стене, двойное, фланец с тремя отверстиями, AISI 304
Назначение
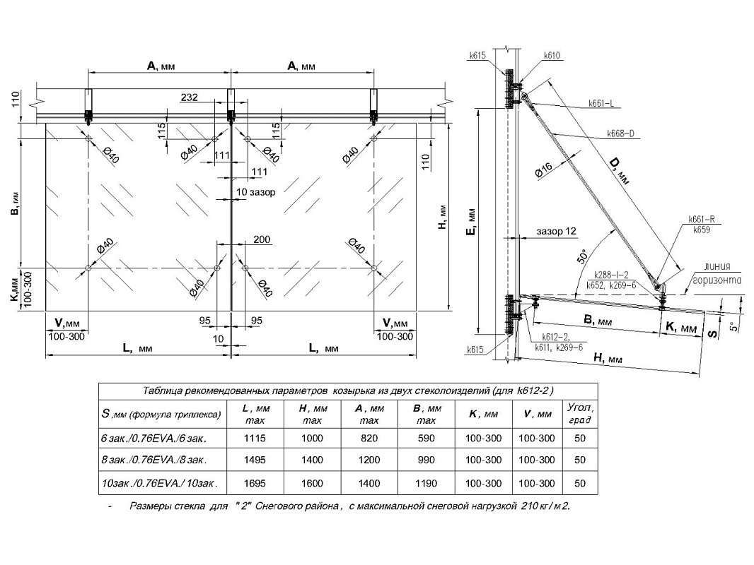
Применяется при монтаже козырьков из стекла, навесов над входом в магазин, козырьков над входом в подвал или над местом курения. Один из самых ответственных элементов крепления козырька. Отвечает за крепление конструкции непосредственно к зданию и несёт на себе весь её вес.
Особенность модели
- Широкий спектр возможностей. Данная деталь чаще всего продаётся в комплекте с рутелем. Однако мы специально продаём её отдельно, так как это делает возможности её применения значительно шире. - Держатель для подвеса стеклянного козырька может использоваться как держатель любых навесных конструкций. Например, рекламных. Высокое качество при низкой цене. 304-я марка стали обеспечивает высокую устойчивость к агрессивной внешней среде. При этом позволяет выпускать крепление по вполне приемлемой цене. Отличный внешний вид детали обеспечивается её высококачественной полировкой. - Исключает возможность излома стекла. Конструкция фланца надёжно защищает конструкцию козырька от колебательных нагрузок.
Сборка и установка
Держатель крепится к стене посредством шпильки и втулки к кондуктору. Идеально становится на k615S , если использовать другие кондукторы, нужно проводить подготовительные работы. Затем в держатель вкручивается рутель (k274-2 или k269-6) и уже на рутель крепится стекло.
Аналогичные модели
k612- Держатель стеклянного козырька двойная (Соединение стойка – рутель х 2). k612-2 имеет три отверстия и выдерживает большую нагрузку

У Вас есть возможность самостоятельно забрать товар с любого нашего склада:

г.Одинцово (схема проезда тут)
График работы: пн-пт 9.00-18.00, сб 09.00-15.00

г.Москва-Жулебино (схема проезда тут)
График работы: пн-пт 9.00-18.00, сб 09.00-15.00

г.Санкт-Петербург (схема проезда тут)
График работы: пн-пт 9.00-18.00.
*Действует пропускная система. Просьба заранее согласовывать приезд с менеджером.

г.Екатеринбург (схема проезда тут)
График работы: пн-пт 9.00-18.00 (время местное)

На территории каждого склада предусмотрена возможность оплаты товара наличными и банковской картой. Также по всем адресам располагается шоу-рум, где можно ознакомиться с образцами товаров и получить подробную консультацию эксперта.

Дополнительно предусмотрена возможность отправки вашего груза услугами известных транспортных компаний по всей России. Оплата доставки груза (склад отправитель-склад получатель) осуществляется за счет покупателя.

Будем рады видеть Вас в числе наших постоянных клиентов!

Ваш отзыв может стать первым! Добавьте его, нажав на кнопку "Добавить отзыв"
Оцените продукт:
Артикул
k612-2
Материал
AISI 304 (08Х18Н10)
Поверхность
Полированная
Описание
Крепление рутеля к стене, двойное, фланец с тремя отверстиями, AISI 304
Назначение
Применяется при монтаже козырьков из стекла, навесов над входом в магазин, козырьков над входом в подвал или над местом курения. Один из самых ответственных элементов крепления козырька. Отвечает за крепление конструкции непосредственно к зданию и несёт на себе весь её вес.
Особенность модели
- Широкий спектр возможностей. Данная деталь чаще всего продаётся в комплекте с рутелем. Однако мы специально продаём её отдельно, так как это делает возможности её применения значительно шире. - Держатель для подвеса стеклянного козырька может использоваться как держатель любых навесных конструкций. Например, рекламных. Высокое качество при низкой цене. 304-я марка стали обеспечивает высокую устойчивость к агрессивной внешней среде. При этом позволяет выпускать крепление по вполне приемлемой цене. Отличный внешний вид детали обеспечивается её высококачественной полировкой. - Исключает возможность излома стекла. Конструкция фланца надёжно защищает конструкцию козырька от колебательных нагрузок.
Сборка и установка
Держатель крепится к стене посредством шпильки и втулки к кондуктору. Идеально становится на k615S , если использовать другие кондукторы, нужно проводить подготовительные работы. Затем в держатель вкручивается рутель (k274-2 или k269-6) и уже на рутель крепится стекло.
Аналогичные модели
k612- Держатель стеклянного козырька двойная (Соединение стойка – рутель х 2). k612-2 имеет три отверстия и выдерживает большую нагрузку

У Вас есть возможность самостоятельно забрать товар с любого нашего склада:

г.Одинцово (схема проезда тут)
График работы: пн-пт 9.00-18.00, сб 09.00-15.00

г.Москва-Жулебино (схема проезда тут)
График работы: пн-пт 9.00-18.00, сб 09.00-15.00

г.Санкт-Петербург (схема проезда тут)
График работы: пн-пт 9.00-18.00.
*Действует пропускная система. Просьба заранее согласовывать приезд с менеджером.

г.Екатеринбург (схема проезда тут)
График работы: пн-пт 9.00-18.00 (время местное)

На территории каждого склада предусмотрена возможность оплаты товара наличными и банковской картой. Также по всем адресам располагается шоу-рум, где можно ознакомиться с образцами товаров и получить подробную консультацию эксперта.

Дополнительно предусмотрена возможность отправки вашего груза услугами известных транспортных компаний по всей России. Оплата доставки груза (склад отправитель-склад получатель) осуществляется за счет покупателя.

Будем рады видеть Вас в числе наших постоянных клиентов!

Ваш отзыв может стать первым! Добавьте его, нажав на кнопку "Добавить отзыв"
Оцените продукт:
Контроль качества
Обновление от 22.01.2025
Популярные товары в этой категории
Крепление стеклодержателя (рутеля) к ванте (серьга) (AISI304) k659 купить в Волгограде
k659
304
3 146 ₽/шт
Крепление стеклодержателя (рутеля) к ванте (серьга) (AISI304) k659
Крепление стеклодержателя (рутеля) к стене под резьбу М14 (AISI304) k660 купить в Волгограде
k660
304
3 477 ₽/шт
Крепление стеклодержателя (рутеля) к стене под резьбу М14 (AISI304) k660
Крепление ванты(тяги) козырька к стене (AISI304), литое, полированное k658 купить в Волгограде
k658
304
3 466 ₽/шт
Крепление ванты(тяги) козырька к стене (AISI304), литое, полированное k658
I-спайдер-200мм, AISI 304, 2х26х38, 1х18х36/40мм, нагрузки: 1кН, 2кН k288-I-2 купить в Волгограде
k288-I-2
304
2 526 ₽/шт
I-спайдер-200мм, AISI 304, 2х26х38, 1х18х36/40мм, нагрузки: 1кН, 2кН k288-I-2
Крепление ванты(тяги) козырька к стойке алюминиевого фасада, AISI 304,литое,полированное, k610 купить в Волгограде
k610
304
3 737 ₽/шт
Крепление ванты(тяги) козырька к стойке алюминиевого фасада, AISI 304,литое,полированное, k610
Крепление козырька к стойке алюминиевого фасада, AISI 304, литое , полированное, k611 купить в Волгограде
k611
304
4 830 ₽/шт
Крепление козырька к стойке алюминиевого фасада, AISI 304, литое , полированное, k611
Крепление стеклодержателя (рутеля) к ванте (серьга) (AISI316) k659-16 купить в Волгограде
k659-16
316
3 454 ₽/шт
Крепление стеклодержателя (рутеля) к ванте (серьга) (AISI316) k659-16
Крепление стеклодержателя (рутеля) к стене под резьбу М14 (AISI316) k660-16 купить в Волгограде
k660-16
316
5 657 ₽/шт
Крепление стеклодержателя (рутеля) к стене под резьбу М14 (AISI316) k660-16
Крепление ванты(тяги) козырька к стене (AISI316), литое, полированное k658-16 купить в Волгограде
k658-16
316
5 220 ₽/шт
Крепление ванты(тяги) козырька к стене (AISI316), литое, полированное k658-16
Кондуктор стандартный алюминиевый для монтажа козырька на алюминиевый фасад,275мм, под 7 саморезов k615S купить в Волгограде
k615S
3 289 ₽/шт
Кондуктор стандартный алюминиевый для монтажа козырька на алюминиевый фасад,275мм, под 7 саморезов k615S
Кондуктор облегченный алюминиевый для монтажа козырька на алюминиевый фасад,200мм, под 5 саморезов k615L купить в Волгограде
k615L
2 496 ₽/шт
Кондуктор облегченный алюминиевый для монтажа козырька на алюминиевый фасад,200мм, под 5 саморезов k615L
Кондуктор усиленный алюминиевый для монтажа козырька на алюминиевый фасад, 550 мм, под 13 саморезов k615X купить в Волгограде
k615X
6 295 ₽/шт
Кондуктор усиленный алюминиевый для монтажа козырька на алюминиевый фасад, 550 мм, под 13 саморезов k615X
Крепление рутеля к стене, двойное 250мм, фланец с тремя отверстиями, AISI 304 k612-3 купить в Волгограде
k612-3
304
/шт
Крепление рутеля к стене, двойное 250мм, фланец с тремя отверстиями, AISI 304 k612-3
Крепление рутеля к тяге (серьга) (AISI316) М14 k659-16-2 купить в Волгограде
k659-16-2
316
4 857 ₽/шт
Крепление рутеля к тяге (серьга) (AISI316) М14 k659-16-2
Крепление тяги к стене двойное (AISI304) k669 купить в Волгограде
k669
304
15 716 ₽/шт
Крепление тяги к стене двойное (AISI304) k669
Крепление двойное с рутелями к стене, AISI 304 k629 купить в Волгограде
k629
304
6 417 ₽/шт
Крепление двойное с рутелями к стене, AISI 304 k629
Крепление стекла к тяге, шлифованное AISI 304 k622 купить в Волгограде
k622
304
6 338 ₽/шт
Крепление стекла к тяге, шлифованное AISI 304 k622
Крепление стекла к стене, шлифованное, AISI 304 k623 купить в Волгограде
k623
304
2 527 ₽/шт
Крепление стекла к стене, шлифованное, AISI 304 k623
Крепление тяги к стене, шлифованная AISI 304 k621 купить в Волгограде
k621
304
2 123 ₽/шт
Крепление тяги к стене, шлифованная AISI 304 k621
Крепление двойное с рутелями к тяге, AISI 304 k628 купить в Волгограде
k628
304
6 420 ₽/шт
Крепление двойное с рутелями к тяге, AISI 304 k628
Новинки категории
Крепление рутеля к тяге (серьга) (AISI316) М14 k659-16-2 купить в Волгограде
k659-16-2
316
4 857 ₽/шт
Крепление рутеля к тяге (серьга) (AISI316) М14 k659-16-2
Крепление рутеля к стене, двойное 250мм, фланец с тремя отверстиями, AISI 304 k612-3 купить в Волгограде
k612-3
304
/шт
Крепление рутеля к стене, двойное 250мм, фланец с тремя отверстиями, AISI 304 k612-3
Крепление двойное с рутелями к стене, AISI 304 k629 купить в Волгограде
k629
304
6 417 ₽/шт
Крепление двойное с рутелями к стене, AISI 304 k629
Крепление стекла к тяге, шлифованное AISI 304 k622 купить в Волгограде
k622
304
6 338 ₽/шт
Крепление стекла к тяге, шлифованное AISI 304 k622
Крепление стекла к стене, шлифованное, AISI 304 k623 купить в Волгограде
k623
304
2 527 ₽/шт
Крепление стекла к стене, шлифованное, AISI 304 k623
Крепление тяги к стене, шлифованная AISI 304 k621 купить в Волгограде
k621
304
2 123 ₽/шт
Крепление тяги к стене, шлифованная AISI 304 k621
Крепление двойное с рутелями к тяге, AISI 304 k628 купить в Волгограде
k628
304
6 420 ₽/шт
Крепление двойное с рутелями к тяге, AISI 304 k628
Кондуктор усиленный алюминиевый для монтажа козырька на алюминиевый фасад, 550 мм, под 13 саморезов k615X купить в Волгограде
k615X
6 295 ₽/шт
Кондуктор усиленный алюминиевый для монтажа козырька на алюминиевый фасад, 550 мм, под 13 саморезов k615X
Кондуктор облегченный алюминиевый для монтажа козырька на алюминиевый фасад,200мм, под 5 саморезов k615L купить в Волгограде
k615L
2 496 ₽/шт
Кондуктор облегченный алюминиевый для монтажа козырька на алюминиевый фасад,200мм, под 5 саморезов k615L
Кондуктор стандартный алюминиевый для монтажа козырька на алюминиевый фасад,275мм, под 7 саморезов k615S купить в Волгограде
k615S
3 289 ₽/шт
Кондуктор стандартный алюминиевый для монтажа козырька на алюминиевый фасад,275мм, под 7 саморезов k615S
Наш Telegram-канал
Эксклюзивные акции и скидки только для подписчиков: не упусти выгоду!
Перейти на наш канал
Подпишись на наш Telegram-канал
Эксклюзивные акции и скидки только для подписчиков: не упусти выгоду!